Informativa
Questo sito utilizza cookie "tecnici" e di "terze parti" per migliorare l'esperienza d'uso. Chiudendo questo banner, scorrendo questa pagina, cliccando su un link o proseguendo la navigazione in altra maniera, si accettano implicitamente le politiche d'utilizzo degli stessi.
Se vuoi saperne di più o negare il consenso a tutti o ad acluni cookie clicca qui.  

Immobiliare Artecasa srl - Viale dei Mille, 48/A-B-C - 42121 Reggio Emilia (RE) - Tel.: 0522 440304 - Email: info@artecasare.eu
Rif. 934/S2

Bilocale in vendita

Pagina precedente

Reggio Emilia - Centro Storico

€ 175.000

Descrizione

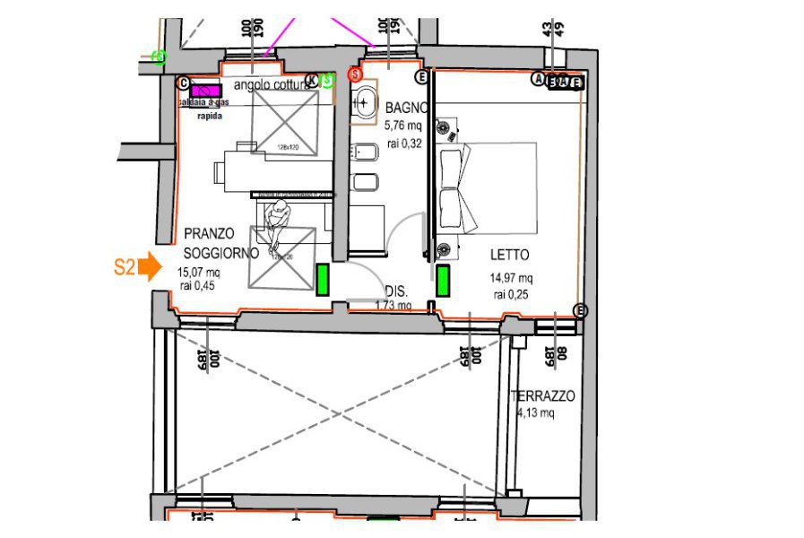
Rif. 934/S2 - Nel cuore pulsante del centro storico di Reggio Emilia, scopri un prestigioso bilocale mansardato all'interno del Palazzo Affarosi-Ritorni, un edificio che racconta la storia dei secoli XIV e XV. Questo appartamento esclusivo, completamente ristrutturato nel 2026, offre un design moderno e funzionale. Con 53 m² commerciali, l'immobile si compone di un ingresso accogliente, una zona living open space luminosa, una camera da letto elegante, un bagno finestrato e una cantina privata. La struttura è organizzata attorno a una suggestiva corte centrale, dove è possibile acquistare un posto auto scoperto. Situato al quarto piano con ascensore, l'appartamento gode di un'ottima esposizione a sud-est, garantendo luminosità e comfort tutto l'anno grazie anche alla presenza di aria condizionata e riscaldamento a pompa di calore. Classe energetica A per un consumo efficiente. Ideale per chi cerca una soluzione abitativa esclusiva nel cuore della città.

Caratteristiche

Superficie 53 m2
Piano 4 di 4
Ascensore
Camere 1
Bagni 1
Garage
Cantina
Riscaldamento autonomo a pavimento
Giardino -
Classe energetica A
I.P.E. -

Posizione indicativa

Condividi Condividi

Richiedi maggiori informazioni

Contattaci ai seguenti recapiti o compila il form per ricevere maggiori informazioni.

Immobiliare Artecasa srl0522 4403040522 451624